Elaboração de Projetos Complementares (Hidráulicos, Elétricos e Estruturais) - Precisão em Riviera de Santa Cristina XIII, SP
Engenharia - EngenheirosNa LNM Engenharia, destacamo-nos na elaboração de projetos complementares, incluindo projetos hidráulicos, elétricos e estruturais. Esses projetos são fundamentais para o sucesso de qualquer empreendimento, garantindo que todas as instalações e estruturas estejam perfeitamente integradas e funcionando com eficiência. Nossa equipe de engenheiros especializados oferece soluções detalhadas e precisas, atendendo às necessidades específicas de cada projeto e assegurando a conformidade com as normas técnicas e regulatórias.
Informações Técnicas
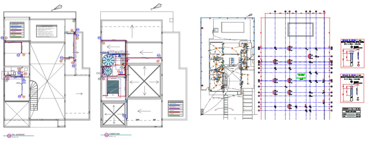
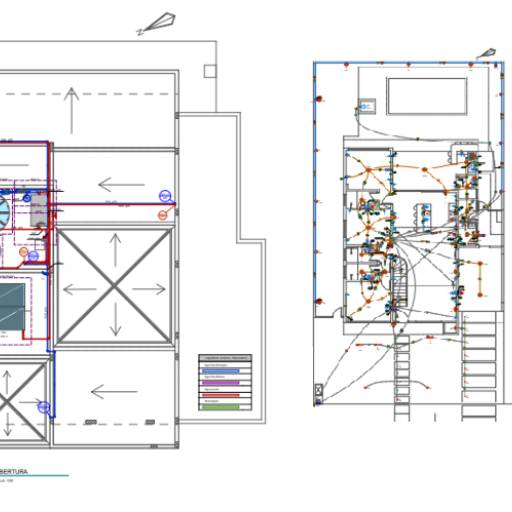
- Especificações Técnicas: Desenvolvemos projetos complementares que cobrem todas as áreas essenciais do seu empreendimento:
- Projetos Hidráulicos: Incluem o planejamento e a especificação dos sistemas de abastecimento de água e esgoto, garantindo eficiência e conformidade com as normas ambientais.
- Projetos Elétricos: Envolvem o dimensionamento e a integração dos sistemas elétricos, assegurando uma distribuição de energia segura e eficiente para todas as necessidades do projeto.
- Projetos Estruturais: Detalham a estrutura do edifício, incluindo fundações, vigas e pilares, garantindo a estabilidade e a segurança do projeto.
- Benefícios:
- Integração Completa: Nossos projetos complementares asseguram que todas as partes do seu empreendimento funcionem em harmonia, evitando problemas e retrabalhos.
- Conformidade e Segurança: Garantimos que todos os projetos estejam em conformidade com as normas e regulamentos técnicos, promovendo segurança e eficiência.
- Precisão e Detalhamento: Fornecemos projetos detalhados e precisos, essenciais para a execução correta e eficiente das obras.
- Diferencial: A LNM Engenharia se diferencia pelo rigor técnico e a atenção aos detalhes em cada projeto complementar. Nossa equipe possui vasta experiência e conhecimentos atualizados, permitindo-nos oferecer soluções inovadoras e eficazes que atendem às necessidades específicas de nossos clientes.
Para obter mais informações sobre a elaboração de projetos complementares (hidráulicos, elétricos e estruturais) em Riviera de Santa Cristina XIII, SP, entre em contato conosco. Estamos prontos para oferecer soluções precisas e de alta qualidade para o sucesso do seu empreendimento.
