Planta Baixa
Design de Interiores em Aracaju, SE
Planta Baixa
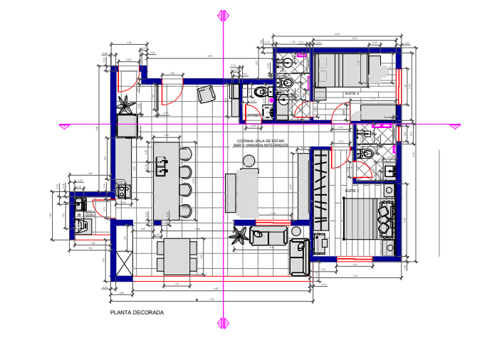
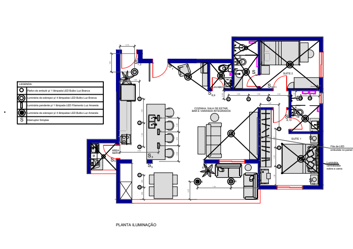
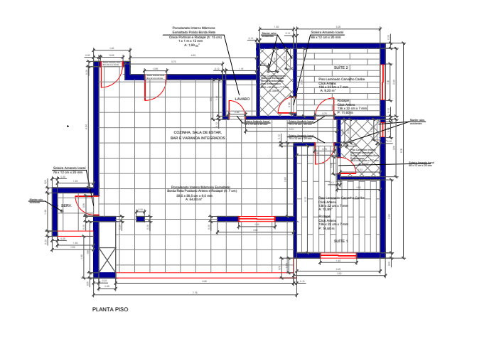
As Plantas dão as dimensões reais do projeto e uma ideia inicial do que se pensou, pode ser em 2D ou 3D. São feitas diversas plantas: a decorada, de piso, de forro de gesso, de iluminação, e alguns cortes e vistas.

PLANTA DECORADA

PLANTA DE ILUMINAÇÃO

PLANTA DE PAGINAÇÃO DE PISO

CORTE

CORTE