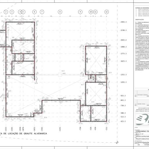
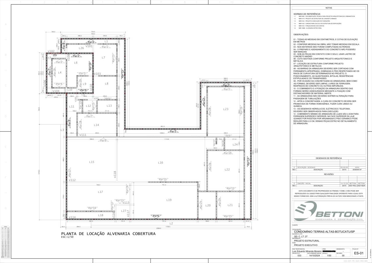
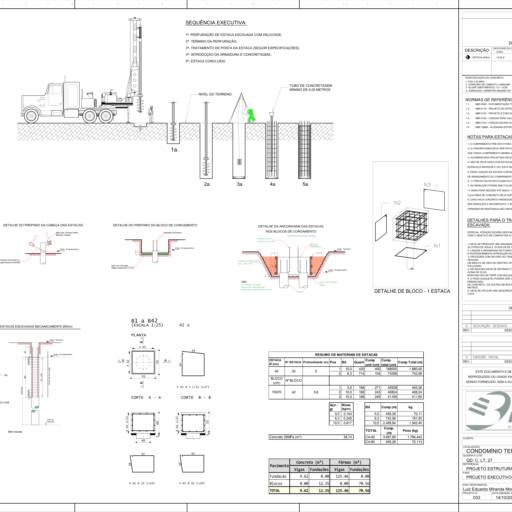
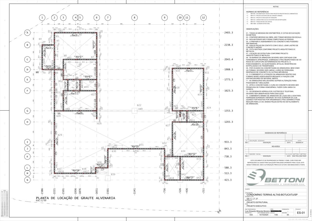
O projeto estrutural é a base que garante segurança, estabilidade e durabilidade a qualquer construção.
Ele define com precisão todos os elementos que sustentam a edificação — como vigas, pilares, lajes e fundações — dimensionados de acordo com o tipo de solo, cargas previstas e características arquitetônicas do projeto.
Mais do que cálculos e desenhos, o projeto estrutural é o elo entre a arquitetura e a execução da obra, transformando ideias em estruturas seguras e viáveis.
Entre os principais benefícios de um bom projeto estrutural estão:
Segurança: garante que a edificação suporte todos os esforços previstos durante sua vida útil;
Economia: evita desperdícios de materiais e reduz custos de execução;
Precisão: assegura compatibilidade com os demais projetos (elétrico, hidráulico e arquitetônico);
Eficiência construtiva: facilita a execução e reduz retrabalhos em obra.
Na BETTONI, desenvolvemos projetos estruturais com foco em qualidade, racionalização de materiais e desempenho, utilizando ferramentas modernas e seguindo rigorosamente as normas técnicas brasileiras.
Nosso objetivo é entregar soluções que aliam segurança, eficiência e estética, garantindo o melhor resultado para cada obra.
